טרומפלדור 1
טרומפלדור 1 פינת ברנר 59 בהרצליה – מיקום חלומי לפרויקט מגורים חדש ויוקרתי.
בלב שכונת הרצליה הצעירה המבוקשת ניצבת פינת קסם נדירה בטרומפלדור 1 פינת ברנר 59 המקום משתלב בהרמוניה מושלמת בין שלווה כפרית לנוחות עירונית עם רחובות שקטים ומוצלים בעצים גבוהים המעניקים תחושת פרטיות ורוגע הפרויקט החדש מציע הליכה נעימה לגנים ובתי ספר וקרבה נוחה לרמת השרון ותל אביב .
הסביבה הקהילתית החמה והאירועים השכונתיים יוצרים אווירה משפחתית וביתית.
הזדמנות פז להצטרף לשכונה המבוקשת בהרצליה – פרויקט חדש ברחוב עם אופי וקסם
בית חדש בהרצליה פארק – בדיוק כמו שתמיד חלמתם
הבניין תוכנן במיוחד למשפחות שאוהבות את השכונה ורוצות להמשיך לחיות בה. הבניין כולל רק 17 דירות ב-5 וחצי קומות, כך שכל דירה מקבלת את תשומת הלב והפרטיות שהיא ראויה לה.
המבנה תוכנן בקפידה כדי להתאים לאופי השכונה – עיצוב נעים ועדין, קווי גג נמוכים וחלונות גדולים הפונים אל הנוף הירוק. קומת הקרקע הגבוהה מאפשרת תצפית פתוחה וטבעית כבר מהקומות הנמוכות. מסביב לבניין תמצאו גינה מטופחת שתוכננה במיוחד כדי לתת תחושת פרטיות ושקט, עם צמחייה שמשתלבת בצורה טבעית בסביבה.
חשוב לנו שהבית יהיה לא רק יפה, אלא גם בריא וחסכוני – לכן התכנון כולל פתרונות בנייה ירוקה: אוורור טבעי, בידוד תרמי איכותי, ותאורה שמנצלת את אור היום כדי לחסוך באנרגיה.
זהו בית שגדל מתוך השכונה, עבור אלה שמחפשים מקום שקט וירוק לחיות בו,.
הבית החדש שלכם בהרצליה הצעירה מחכה לכם – מקום שתשמחו לחזור אליו כל יום.
בית במחשבה תחילה – דירות משפחתיות בהרצליה הצעירה
בבניין , כל דירה תוכננה בקפידה כדי להעניק מרחב מחיה מושלם למשפחות. בכל קומה שלוש דירות גדולות במיוחד, כולל דירות גן מרווחות ופנטהאוזים ייחודיים המשקיפים על גגות השכונה.
הדירות:
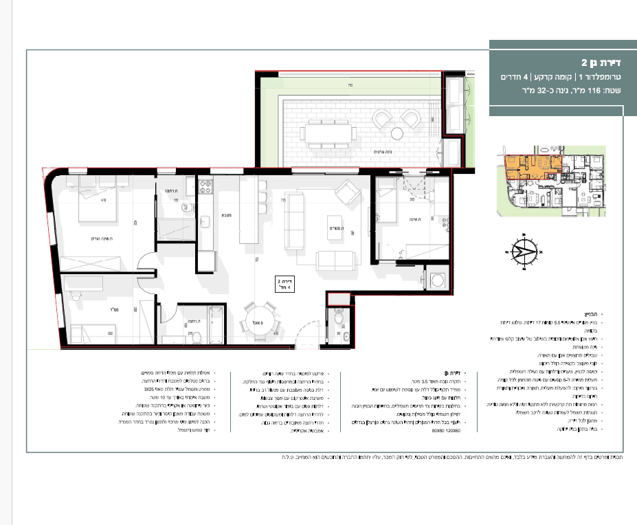
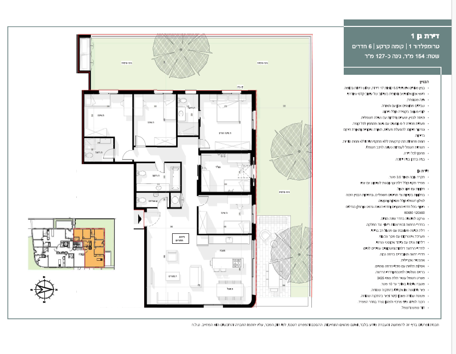
– דירות גן (112-154 מ"ר) – חיבור ישיר לגינה הפרטית
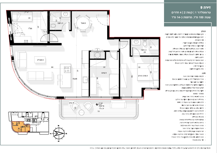
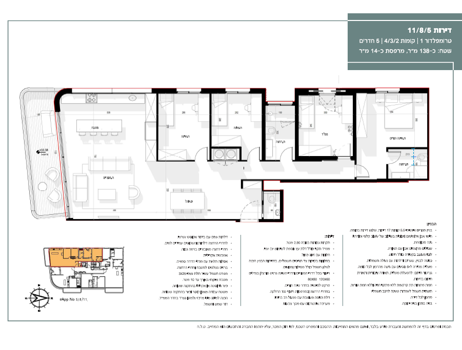
– דירות 4-5 חדרים (130-150 מ"ר) – עם סלון רחב ידיים, פינת אוכל נדיבה ומטבח בתכנון נגר אומן (ניתן לשדרג למטבח פרימיום)
– פנטהאוזים:
– דירת 127 מ"ר + מרפסת 50 מ"ר
– דירת 162 מ"ר עם מרפסת 85 מ"ר + מרפסת גג ענקית הכוללת בריכת אינפיניטי
תכנון חכם:
– גמישות אדריכלית – אפשרות להתאמת החללים לצרכים משתנים
– פתרון אקלימי מתקדם לשליטה מושלמת באקלים הביתי
– מפרט טכני משודרג: תאורה עקיפה, תכנון אקוסטיקה, ואופציות להטמעת מערכות בית חכם
זהו בית שחושב על כל פרט – ממרחב המחיה המשפחתי ועד לפרטים הטכניים הקטנים ביותר. מקום שבו גודל פוגש איכות, ועיצוב פוגש פונקציונליות.
תכנון מוקפד למשפחות שחושבות קדימה.
היתרונות של הפרויקט
קצת על היזם
בצת אילון
חברה יזמית בהנהלת מהנדסי בניין, המתמחה בתכנון ניהול ויזמות של פרויקטים בתחום ההתחדשות העירונית ובתחום התעשייה. החברה יוזמת פרויקטים לאחר סינון מדויק תוך בחירת מיקום מעולה ותנאי מגרש המאפשרים תכנון דירות ברמה המקצועית הגבוהה ביותר. בחברה מהנדסים וותיקים המלווים כל פרויקט מתחילתו ועד סופו, החל בתכנון וניהול צוות היועצים ועד מסירת הדירה ללקוח.